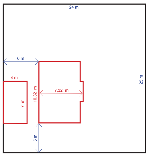
Wykopy pod fundamenty
14.05.2015
Kopią wielką dziurę :) Na zdjęciach początki niwelacji terenu.
Sama glina i troche deszczu.


14.05.2015
Kopią wielką dziurę :) Na zdjęciach początki niwelacji terenu.
Sama glina i troche deszczu.


13.05.2015
Na tym etapie wydawało nam się, że w ogóle nie mamy działki wokół domu :)



Na szczęście w rzeczywistości nie wygląda to tak źle jak się wydaje na tym etapie ;)
"Tu na razie jest ściernisko [glinisko raczej ;)], ale będzie..." ANTONÓWKA!

A to taki żart (?) mojej drugiej połówki. Po lewej garaż, a po prawej... mini boisko ;)

Chcieliśmy dom w okolicach 90-100 m2. Pierwszą myślą był dom typu 1 i 1/2 Miniaturka (Archon), czyli z poddaszem użytkowym. Potem, trochę bardziej intensywnie pod wpływem dewelopera, zastanawialiśmy się nad parterówakmi.
Z poddaszem użytkowym:
+ mniejsza powierzchnia zabudowy = więcej miejsca na działce
+ bardziej zwarta bryła
+ skosy na poddaszu (subiektywny osąd: dla mnie to plus, bo zawsze mi się to podobalo - zwłaszcza okna połaciowe)
- koszt schodów
Parterówka:
+ bardziej ustawne pokoje
+ wysoki strych
- mało albo wcale miejsca na działce
- parterówka bardziej przypomina mi mieszkanie niż dom (subiektywny osąd)
Ogólnie mówiąć, to jeśli ktoś nie ma "słabości do" skosów, schodów, wyraźnego oddzielenia strefy dziennej od nocnej, dwóch łazienek, do tego ma działkę przynajmniej 800-900 m2, to lepszym wyjściem jest paterówka około 90m2 z wysokim strychem. Ja mam słabość ;)
Poważnie mówiąc, to decydujacy był u nas fakt, że nie mogliśmy mieć (z różnych względów) większej działki i nie chcieliśmy rezygnować z ogrodu. Dom 90m2 z poddaszem użytkowym daje się ładnie umieścić na działce 600 m2 tak, że będzie gdzie rozłożyć basen, albo nawet pograć w badmintona.
Nasz deweloper nie miał z nami łatwo jeśli chodzi o wybór projeku. Uzyskałam wyceny dla kilkunastu projektów. Finalistami byli: Miki II (pracownie Dominanta), Kropla Nadziei M185 (Murator), i Dom w Antonówkach ver.2 (Archon).
Miki II miął za mały salon i schody w salonie - elementy "na nie" dla mojego męża. Kropla Nadziei już była wybrana (i zamodelowana w 3D)... W ostatniej chwili zauważyliśmy ściankę kolankową wysokości 73 cm i brak strychu w projekcie, a strych był dla nas koniecznością. Wtedy znaleźliśmy antonówki. I tak zostało. Mąż czasem jeszcze wspomina Kroplę Nadziei. Gdyby nie ten strych, przeżyłby pewnie ściankę kolankową. Ja bym chyba jednak nie przeżyła ;)
Szpikulec naszego cyrkla był wbity w centrum Gliwic. Kto zna te miasto wie, że ziemia tam jest lekko mówiąc droga, więć kreśliliśmy coraz większe okręgi.
Obejrzeliśmy na prawde sporo działek, sporo budów typu "wybudujemy dom od zera na państwa działce". Rozważyliśmy technologie: szkieletową (bal nawet!), keramzytową, tradycyjną. Długo wahaliśmy się nad keramzytem.
W naszej okolicy nie znaleźliśmy takiej oferty dewelopera, która by nas satysfakcjonowała. Pewnie. Nasze wymagania były trudne do spełnienia: dość ograniczone pole lokalizacji, dom wolnostojący, działka przynajmniej 600 m2, droga dojazdowa do działki conajmniej brukowana, oprócz prądu i wody jeszcze gaz i kanalizacja. No i nieprzekraczalny budżet. 20% niższy niż średnia cena tego co oglądaliśmy. Nie chcieliśmy kompromisów, choć oglądaliśmy działki bez gazu, kanalizaci i bez drogi oraz bliźniaki... Niektóre kuszące, ale staraliśmy się brać pod uwagę wszystko i oglądać każdy fakt z każdej strony, łaczyć fakty...liczyliśmy, ustalaliśmy priorytety. Opcje, zapytania, wyceny, excel i tabelki. Z perspektywy czasu, uważam, że słusznie.
Wybraliśmy miejsce położone w akceptowalnej odległości od Gliwic, blisko rodziny, w dzielnicy, która właściwie bardziej przypomina wieś niż miasto, położonej kilka kilometrów od centrum dużego miasta.
Wybraliśmy budowę w technologii tradycyjnej, przez dewelopra, ale według projektu gotowego wybranego przez nas. Działka (600 m2) ma dostęp bezpośredni do drogi brukowanej, gaz, kanalizację.

Budujemy dom kilkadziesiąt metrów od miejsca, w którym urządziliśmy wesele, a po sąsiedzku rośnie dom naszych przyjaciół. Także jednych sąsiadów już trochę znamy. Gdybym usłyszała to rok temu, powiedziałbym, że takie telenowele tylko w TVP ;)

Komentarze